Page contents
Llwyn Eirin is an innovative new development, our first council homes to be built in 30 years!
Llwyn Eirin is an innovative new development, our first council homes to be built in 30 years! Llwyn Eirin is situated in Denbigh, and will be home to 18 two-bedroom and 4 four-bedroom semi-detached houses for social rent.
These low carbon homes, which will be built, and certified to the energy-efficient Passivhaus standard, are part of the Council’s target to secure the provision 170 new council homes by 2022. Find out more about these innovative homes.
We will update this page as the project progresses.

House Types
This exciting new development will be home to two types of semi-detached, Passivhaus homes.
Two Bedroom specification:
- Spacious 2 bed with kitchen/Diner and living room (no white goods included)
- Downstairs WC
- 2 bedrooms
- Large bathroom with electric shower over bath
- Blinds and flooring included
- Ground source Heating System
- Parking included
- Fibre to the premises broadband available (<1Gbps download speed)
- Energy Performance Certificate – Grade A (to be confirmed)
- Council Tax Band (to be confirmed)
- Service Charge (to be confirmed)
- Available from Spring 2022
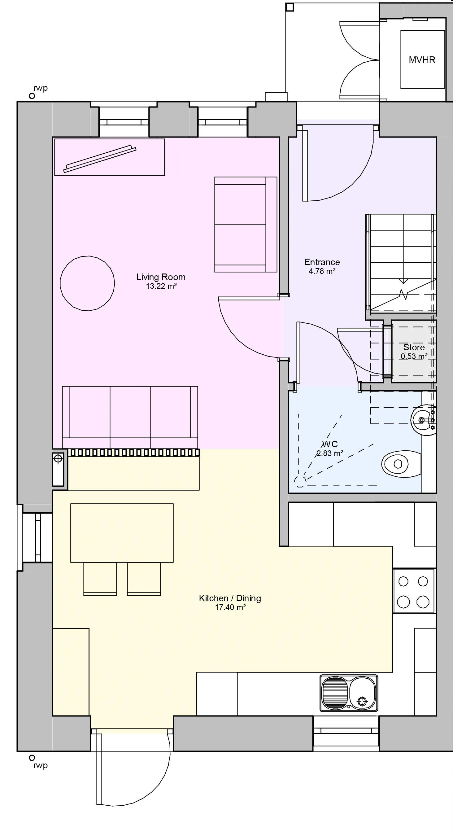
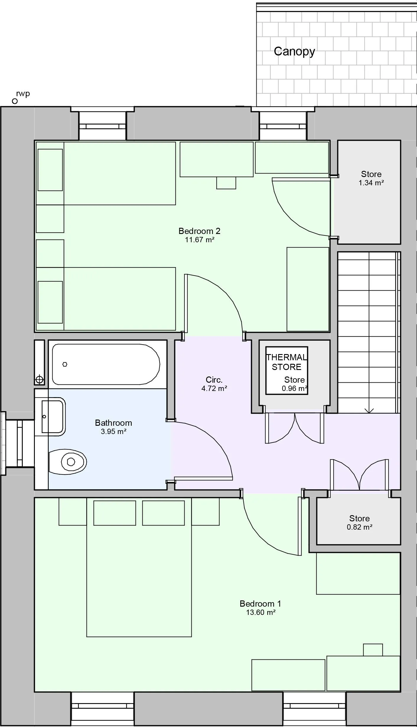
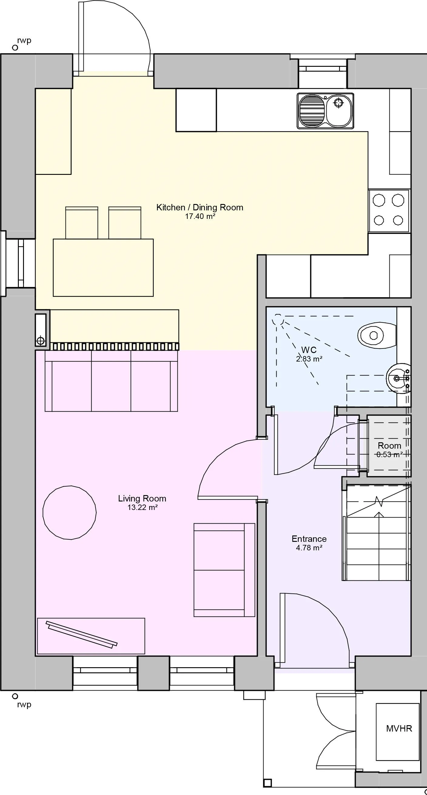
House Type 1: two bedroom
Two storey, floorplan of house type 1, two bedrooms with kitchen/diner and living room.


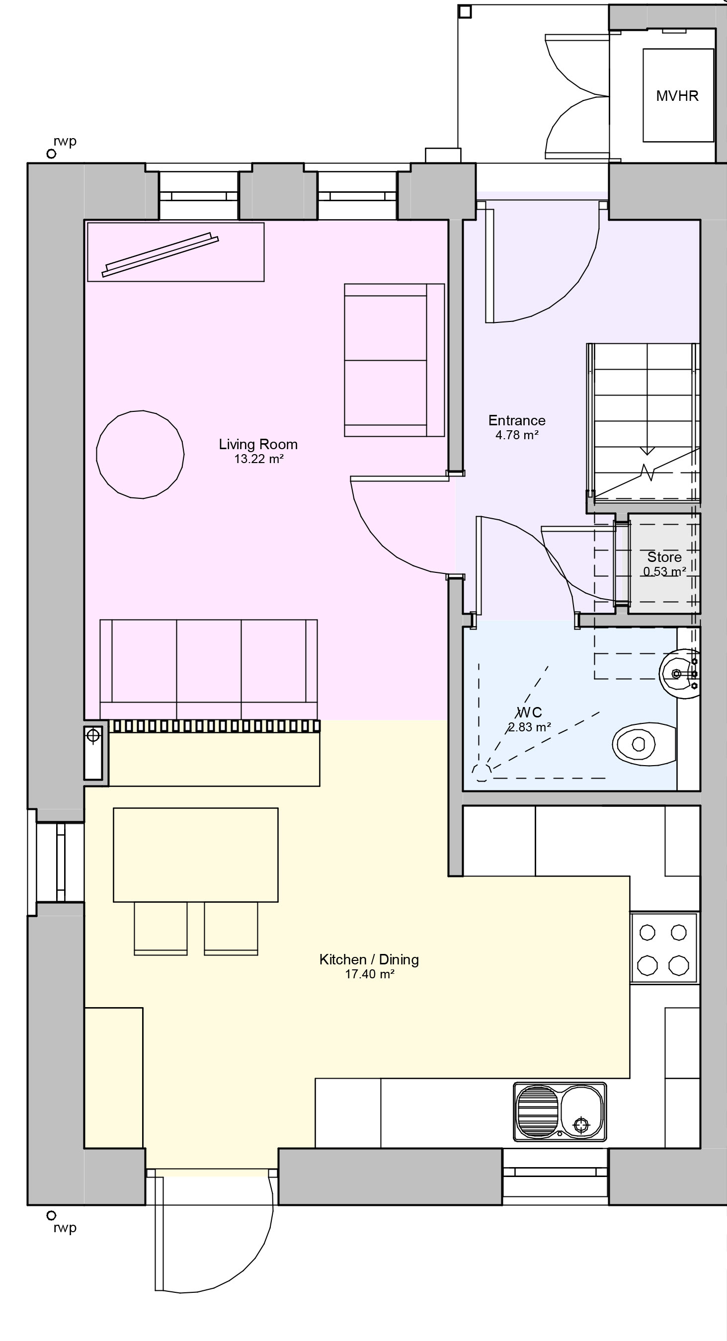
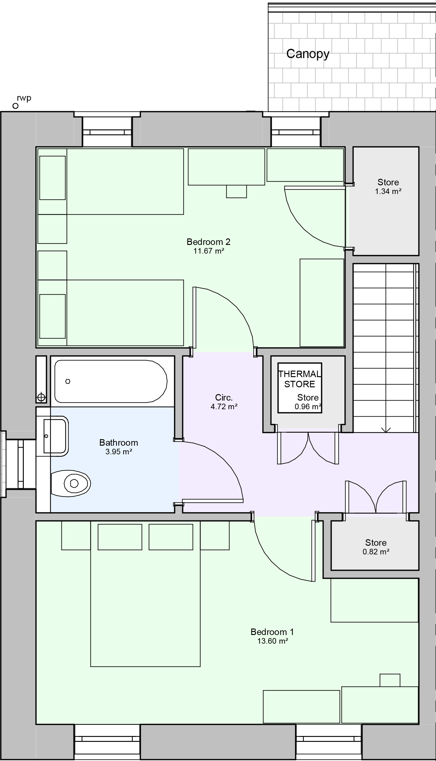
House Type 2: two bedroom
Two storey, floorplan of house type 2, two bedrooms with kitchen/diner and living room.


House Type 3: two bedroom
Two storey, floorplan of house type 3, two bedrooms with kitchen/diner and living room.


House Type 4: two bedroom
Two storey, floorplan of house type 4, two bedrooms with kitchen/diner and living room.


Four Bedroom specification:
- Spacious 4 bed with kitchen and living/dining room (no white goods included)
- Downstairs WC
- 4 bedrooms
- First floor large bathroom with electric shower over bath
- Second floor WC
- Blinds and flooring included
- Passive Ground Source Heating System
- Parking included
- Fibre to the premises broadband available (<1Gbps download speed)
- Energy Performance Certificate – Grade A (to be confirmed)
- Council Tax Band (to be confirmed)
- Service Charge (to be confirmed)
- Available from Autumn 2021
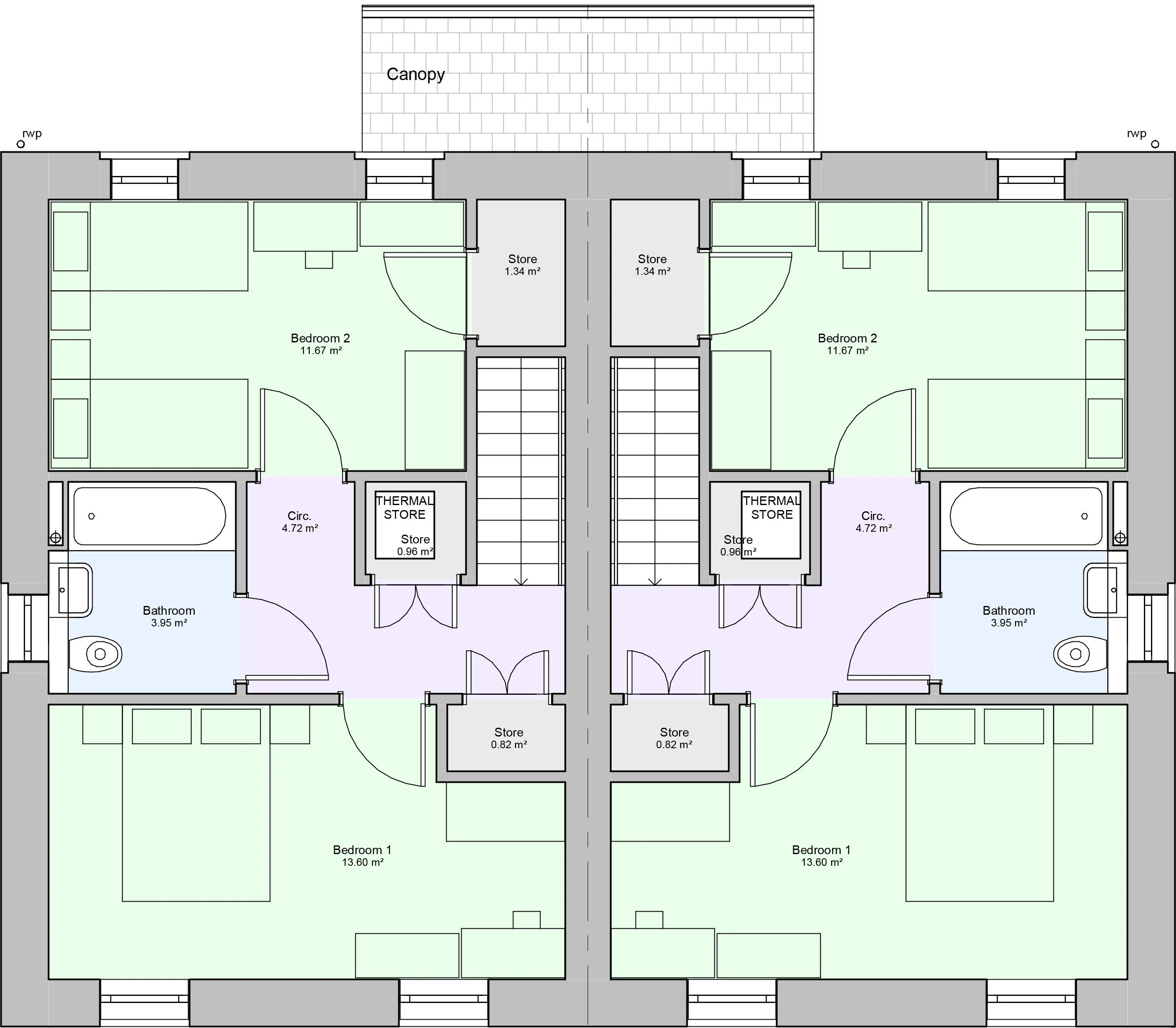
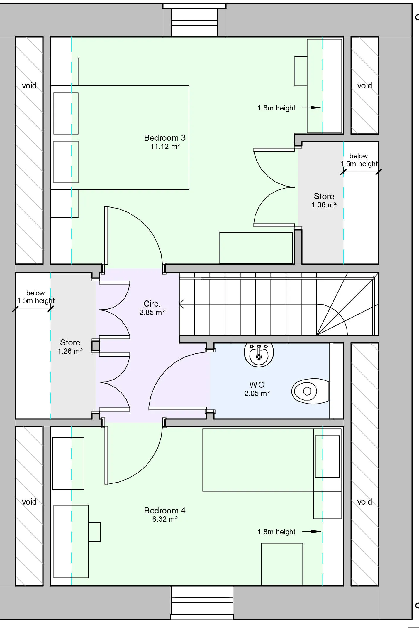
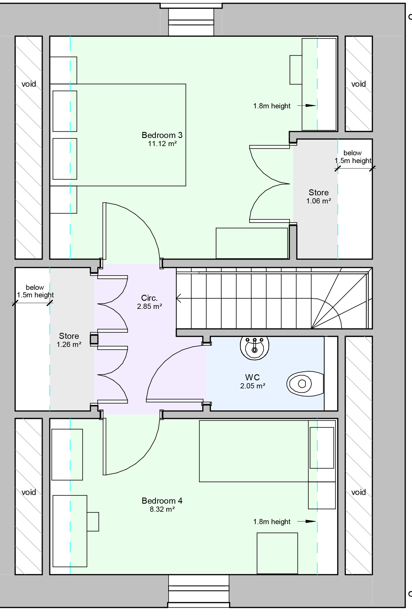
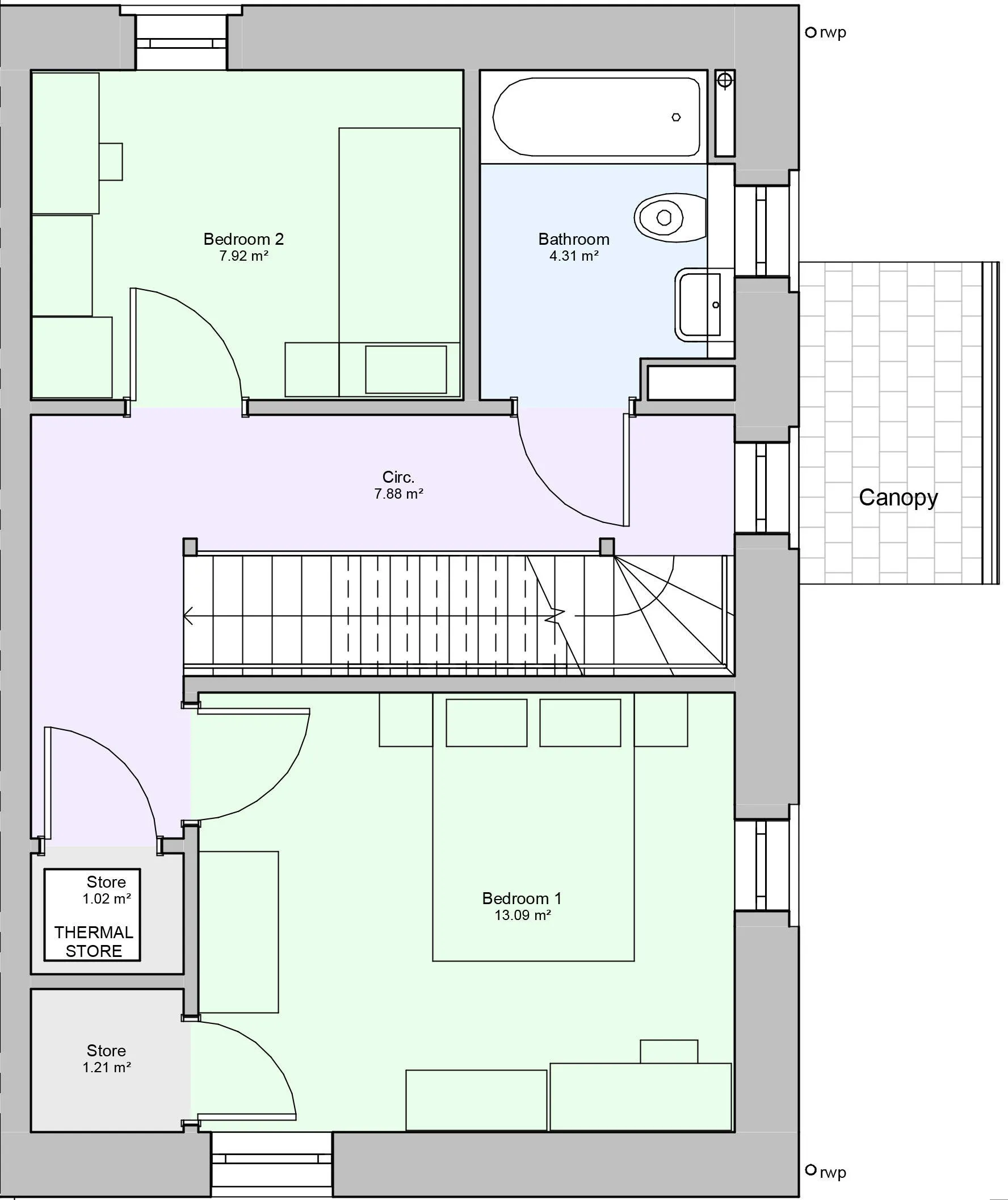
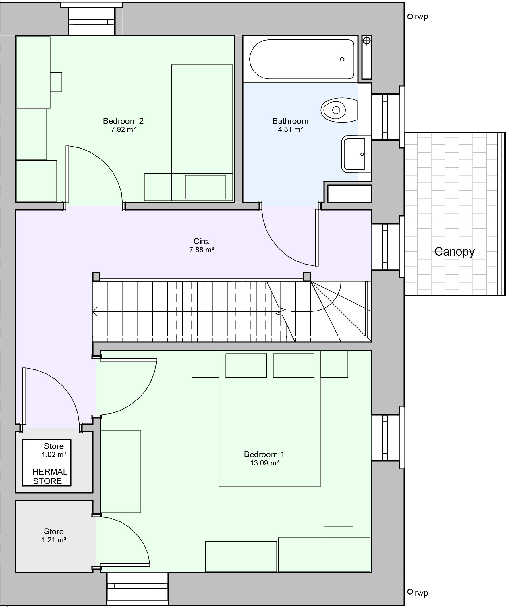
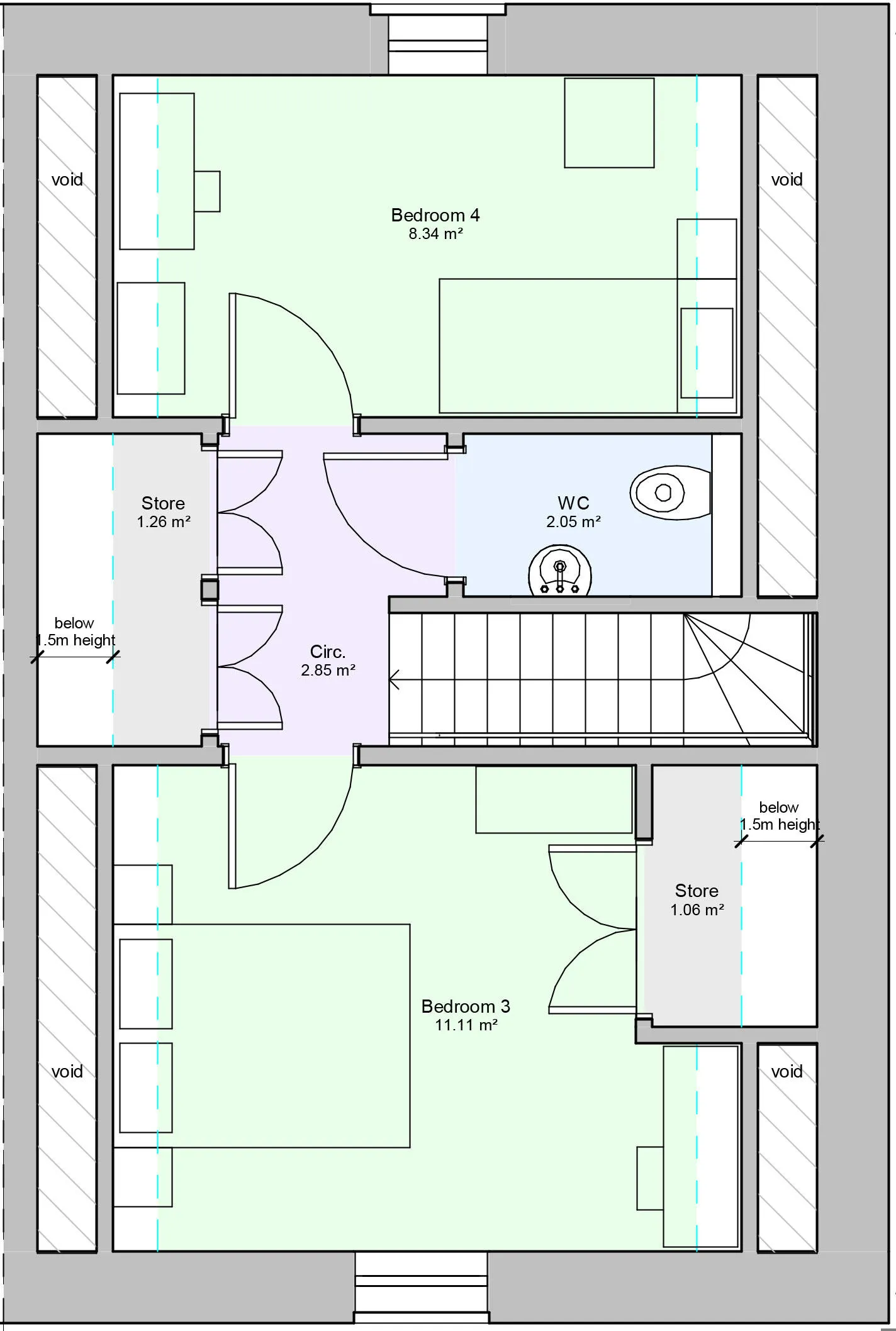
House Type 1: four bedroom
Three storey, floorplan of house type 1, four bedrooms with kitchen and living room/diner.



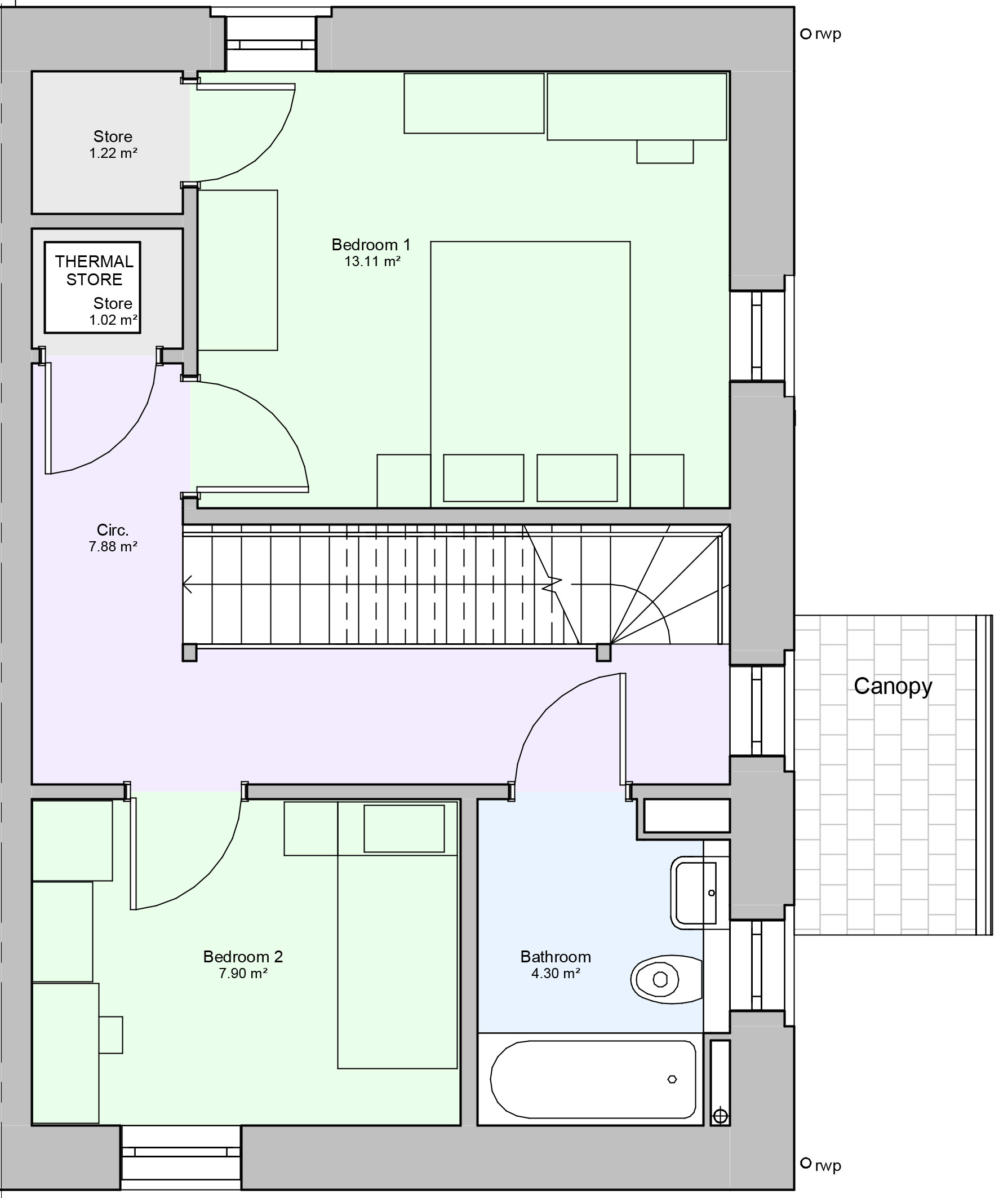
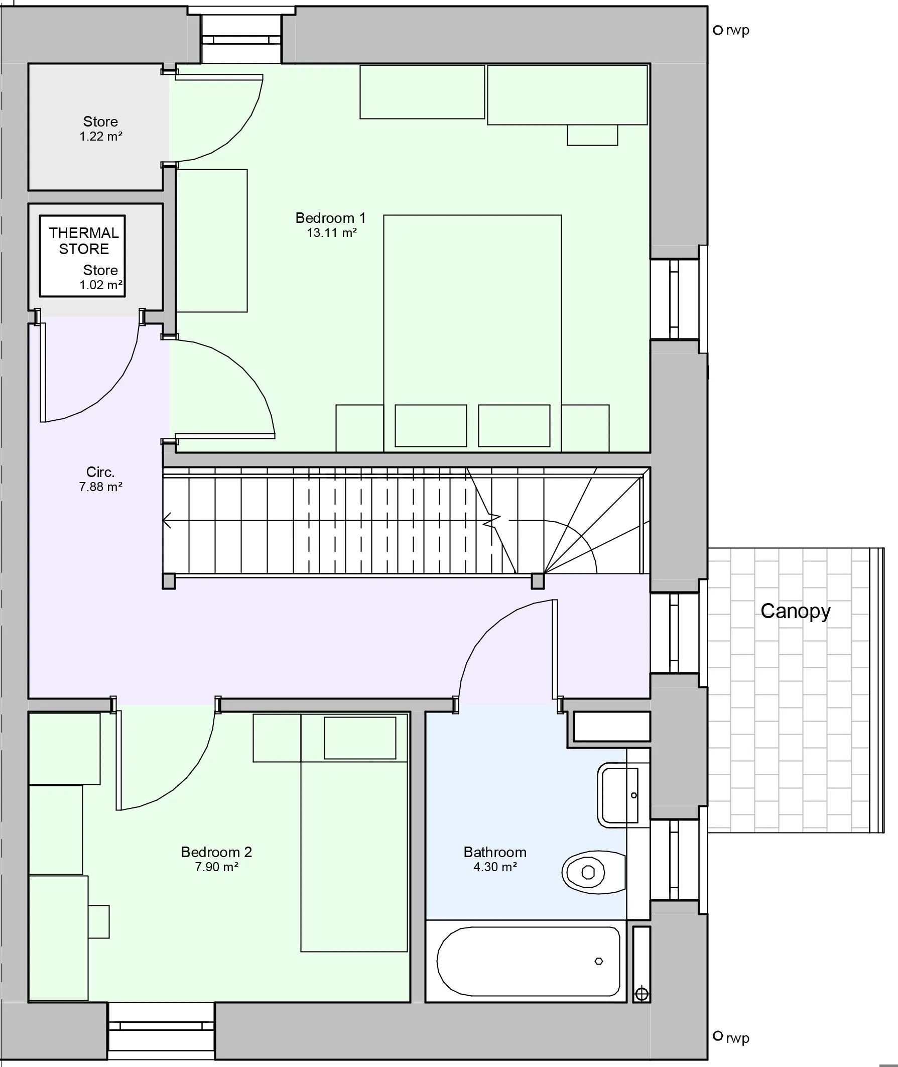
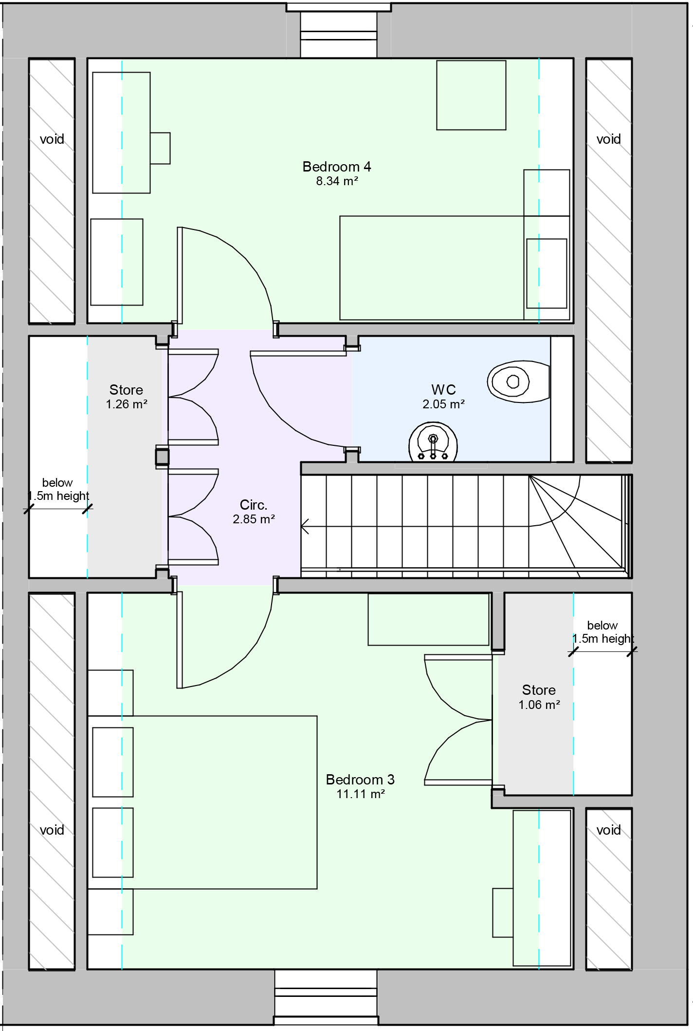
House Type 2: four bedroom
Three storey, floorplan of house type 2, four bedrooms with kitchen and living room/diner.



Site plan
Drawing of cul-de-sac estate layout for 22 semi-detached homes on Llwyn Eirin estate with road.
- Blue indicator dots = four bed
- Yellow indicator dots = two bed

Community Updates
Read our community updates about Llwyn Eirin homes
- Denbighshire Community Update - May 2021pdf file[466KB]
- Denbighshire Community Update - July 2021pdf file[392KB]
- Denbighshire Community Update - December 2021 - Englishpdf file[369KB]
- Denbighshire Community Update - October 2022 - Englishpdf file[264KB]
Disclaimer
Please note the images shown are for illustrative purposes only, and no information contained within this webpage will form any part of a tenancy. All measurements given are approximate.
Partly funded by Welsh Government
